- Home >
- Your Council >
- Your Views >
- Waterfall Park - SHA
Waterfall Park - Special Housing Area
Feedback is now closed
Click here to view public feedback [PDF 4.2MB]
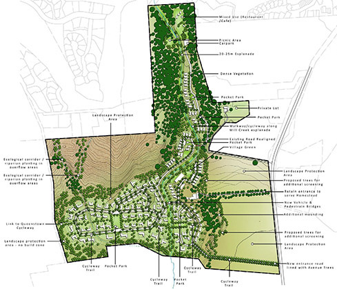
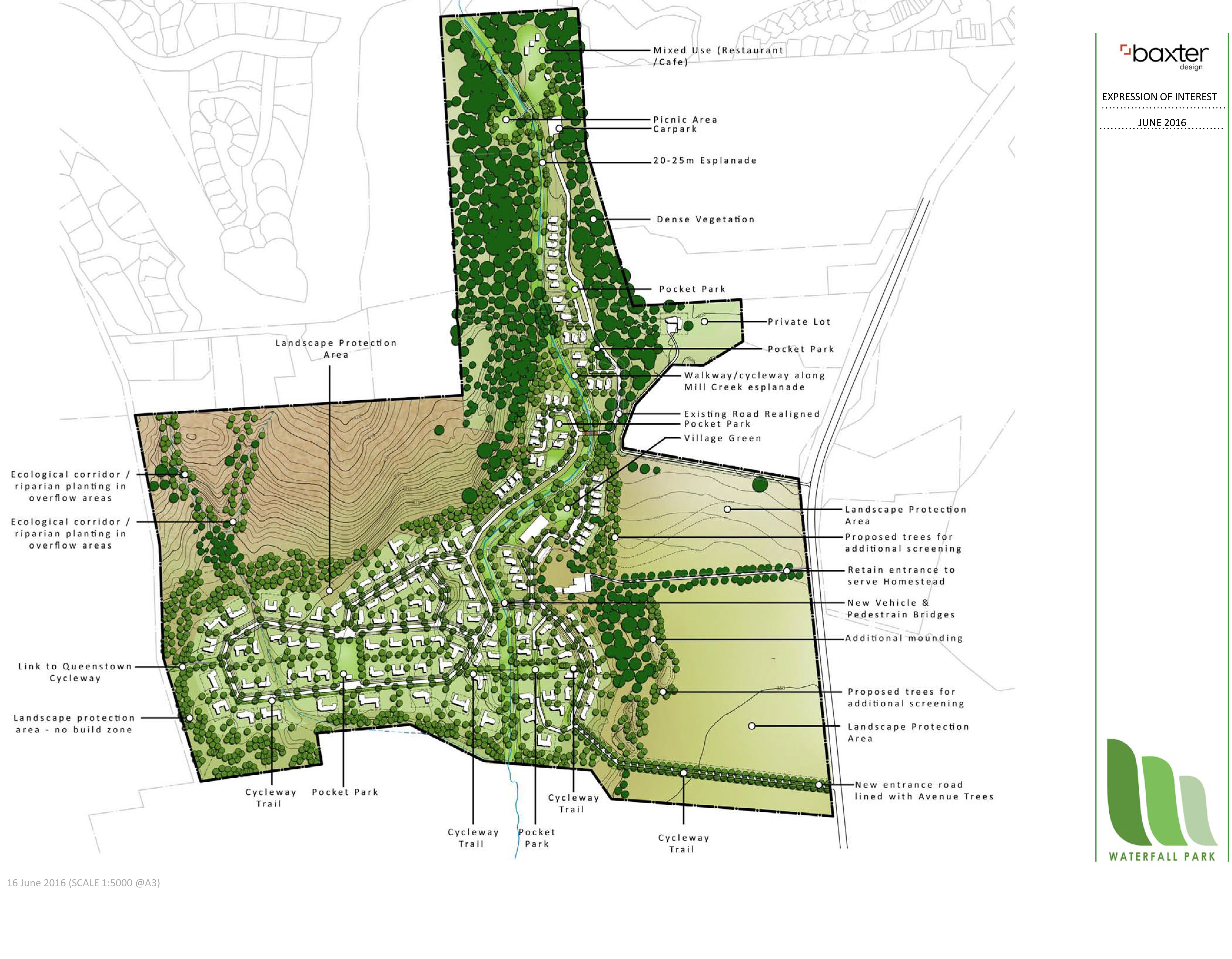
We have received an Expression of Interest to develop a Special Housing Area (Waterfall Park Special Housing Area) near Arrowtown along Arrowtown Lake Hayes Road (341, 343 & 345 Arrowtown Lake Hayes Road).
The proposal is taking place on land that is partly located in the Waterfall Park Resort Zone and partly located in the Rural General zone of both the Operative and Proposed District Plans.
The Council is due to consider this Expression of Interest at an Extraordinary Full Council meeting to be held on the 11th of August 2016.
Click the links below to read the Expression of Interest.
- Waterfall Park - Expression of Interest for a Special Housing Area, June 2016 [PDF 14.3 MB]
- Appendix 1 - Masterplan [PDF 514KB]
- Appendix 2 - Infrastructure Review [PDF 438KB]
- Appendix 3 - Flood Hazard Review [1.96MB]
- Appendix 4 - Geotech review [PDF 14.21MB]
- Appendix 5 - Transportation Review [PDF 1.37MB]
If you would like more information, please email Anita Vanstone in our Planning Team, services@qldc.govt.nz