- Home >
- Your Council >
- Your Views >
- Queenstown Country Club - Special Housing Area
Queenstown Country Club - Special Housing Area
Summary of submissions (PDF 870KB)
This consultation is now closed.
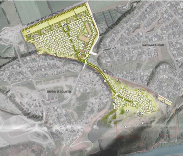
We have received an Expression of Interest to develop a Special Housing Area (Queenstown Country Club SHA) as a retirement village near Lake Hayes Estate and Shotover Country. The proposed SHA is located on two tracts of land within the Wakatipu Basin. The northern site is located adjacent to the Frankton-Ladies Mile Highway (and State Highway 6) and the southern site is located at Jones Avenue, Queenstown.
The Council will consider this Expression of Interest at the Full Council Meeting on the 26 May 2016.
Click the links below to read the Expression of Interest.
Specific Links:
- Queenstown Country Club - Expression of Interest for a Special Housing Area on behalf of Sanderson Group, April 2016 (2.8MB)
- Appendix 1 – Masterplan (6.8MB)
- Appendix 2 – Landscape & Urban Design Report (7.17MB)
- Appendix 3 – Infrastructure Report (2.1MB)
- Appendix 4 – Transportation Report (1.7MB)
- Appendix 5 – Geotechnical Report (3.5MB)
- Appendix 6 - Copy of supporting feedback (2.7MB)
- Summary of submissions (PDF 870KB)
While the Housing Accords and Special Housing Areas Act 2013 does not provide for formal consultation on the establishment of special housing areas, the Mayor and Councillors are interested to hear local views on this proposal.
If you would like more information, please email Anita Vanstone in our Planning Team, services@qldc.govt.nz