- Home >
- Your Council >
- Your Views >
- Coneburn Special Housing Area
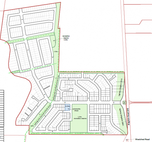
Coneburn Special Housing Area
We have received an Expression of Interest to develop a Special Housing Area (‘proposed Coneburn Special Housing Area’).
The proposal includes:
- Approx. 48 ha of developable land
- Zoned Open Space Landscape Activity Area (PDP)
- Within the Urban Growth Boundary
- Not located in the ONL, maintains 50m SH6 buffer
- Close to Hanley Downs and Jacks Point urban areas
- Opposite Coneburn Industrial Zone
- Provides for a roundabout on SH6
- Up to 600 residential lots with a dwelling density of 12.5 dwellings per hectare
Concept Plan:
The proposed Coneburn Special Housing Area concept is shown in the image below:
The Council is aiming to consider the Expression of Interest at the 18 April 2019 Full Council meeting in Queenstown.
Specific links:
- Chorus confirmation of supply (144.62 KB)
- Concept Plan Option A (13.84 MB)
- Concept Plan Option B (13.53 MB)
- Coneburn Urban Design Review (1.22 MB)
- Coneburn Valley SHA Expression of Interest (1.49 MB)
- Consent Notice 7919701.16 (283.15 KB)
- Contaminated Land Enquiry (69.39 KB)
- Correspondence with ORC (143.18 KB)
- Flood and stormwater report (1.24 MB)
- Geotechnical report (618.95 KB)
- Initial email to Ministry of Education + ODT story (382.33 KB)
- Initial emails with Aukaha and Te Ao Marama (385.17 KB)
- PowerNet confirmation of supply (43.05 KB)
- Queenstown Trails Trust Letter (134.34 KB)
- Record of Title (807.50 KB)
- Renders (5.35 MB)
- Transport Feasibility Letter (1.05 MB)
- Water and wastewater servicing (221.83 KB)
Have your say:
Submissions have now closed. To view the submissions received, please click here.
While the Housing Accords and Special Housing Areas Act 2013 does not provide for formal consultation on the establishment of special housing areas, the Mayor and Councillors are interested to hear local views on this proposal.
Want more info?
Please email Werner Murray in our Planning Team, werner.murray@qldc.govt.nz
Or, take a look at QLDC's Lead Policy (28 June 2018)